- Location: 20 Pine St. NY, NY 10005
- Size: 3,000 sqft
- Services: Mechanical, Plumbing, Electrical, Sprinkler, and Special Inspections.
-
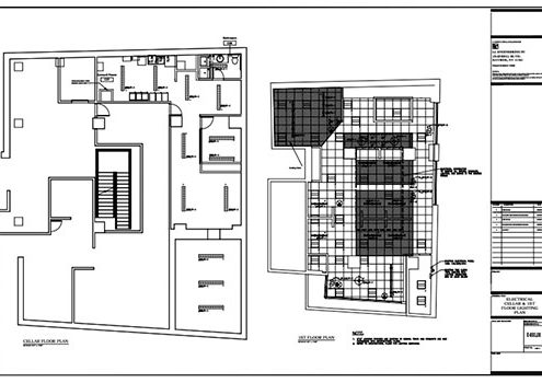
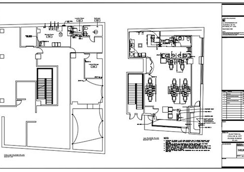
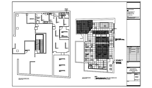
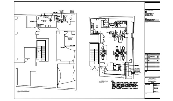
Description: A new Hair Salon tenant fit out on the ground floor of a 38 floor mixed residential and commercial building was designed. Base building utilities for electric, water, and sprinkler were used for the new layout. A sub-meter for the water was installed to comply with tenant agreement and powered by electrical service. KW and storage capacity of the water heater was determined based on estimated peak demand of hair stations and other fixtures requiring hot water. Mechanical cooling and heating was provided using the existing system and modifying the existing duct work. Electric duct heater was installed on the outside air to temper it and provide addition heating to the space. Special inspections were performed for Mechanical Systems, Fire-resistant Penetrations and Joints, Energy Code Compliance, and Sprinkler Systems. Installation was inspected for compliance with approved construction documents. Mechanical equipment installed were checked for correct model type and installation standards. Sprinklers were checked for proper coverage to be effective in extinguishing a potential fire.
Sprinkler- Approved
Mechanical- Approved

















